Design
At Urban Garden, our team of skilled designers collaborate closely with you and bring your vision to life, offering expert solutions for both residential and commercial properties.
We specialize in transforming outdoor spaces into functional, beautiful, and sustainable landscapes that reflect your unique vision; whether you’re looking to design a peaceful garden retreat for your home, an inviting outdoor entertainment space, or a dynamic landscape for your business.
- Site Analysis & Consultation
- 2D Landscape Plans (Colour + B/W)
- 3D Renderings & Visualization
- Hardscaping Design
- Softscaping Design
- Irrigation Design Plans
- Lighting Design Plans
- Water Feature Design
- Landscape Maintenance Plans
- Outdoor Structures & Custom Builds
- Landscape Architectural Services
- Interior Planting Design
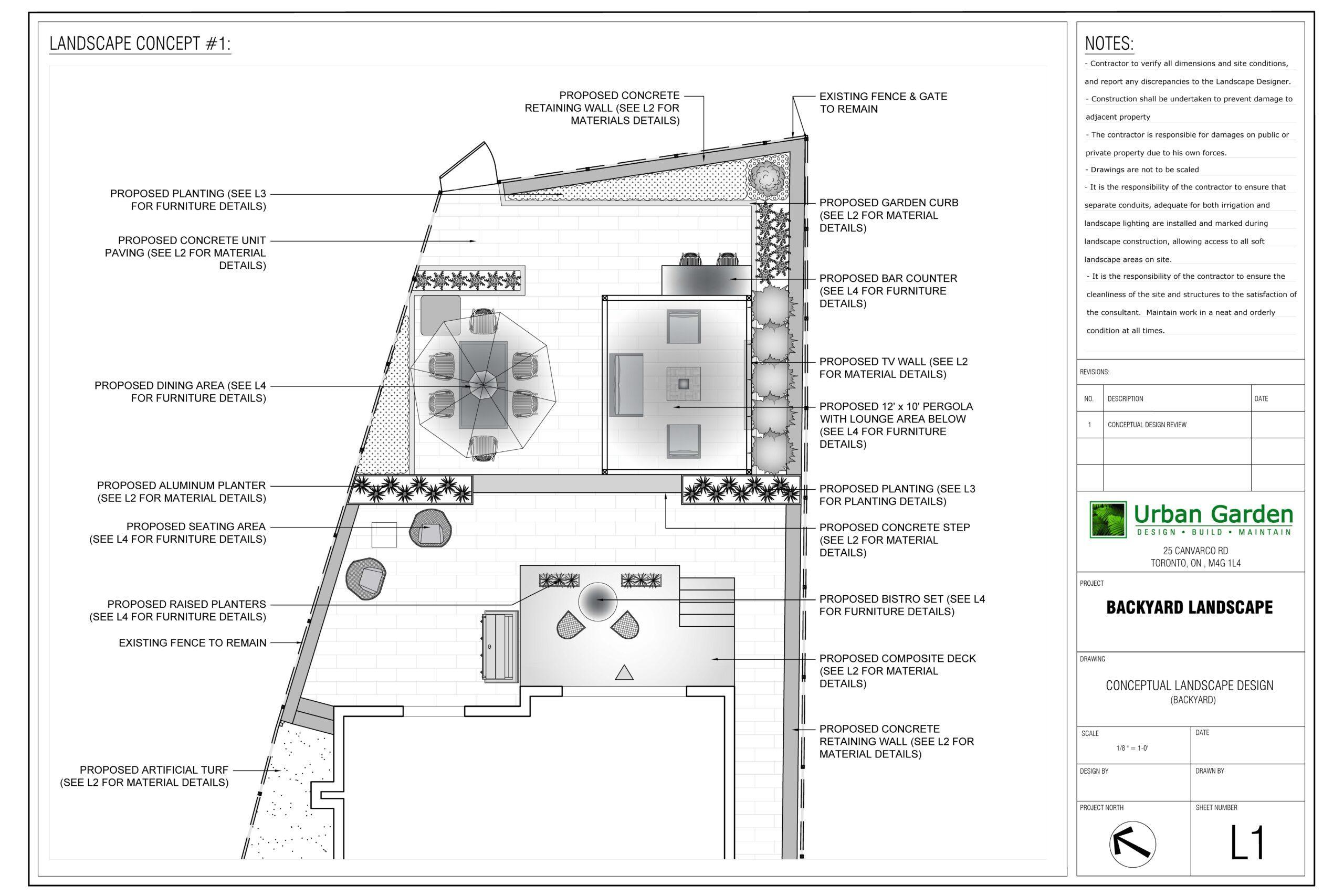
Conceptual Design
A primary landscape drawing package outlining intentions through 2D or 3D drawings depending on the scope of work, including a rough installation budget.
Design Development
A complete landscape drawing package with 3D visuals further detailing the overall landscape design to be installed.
Construction Documents
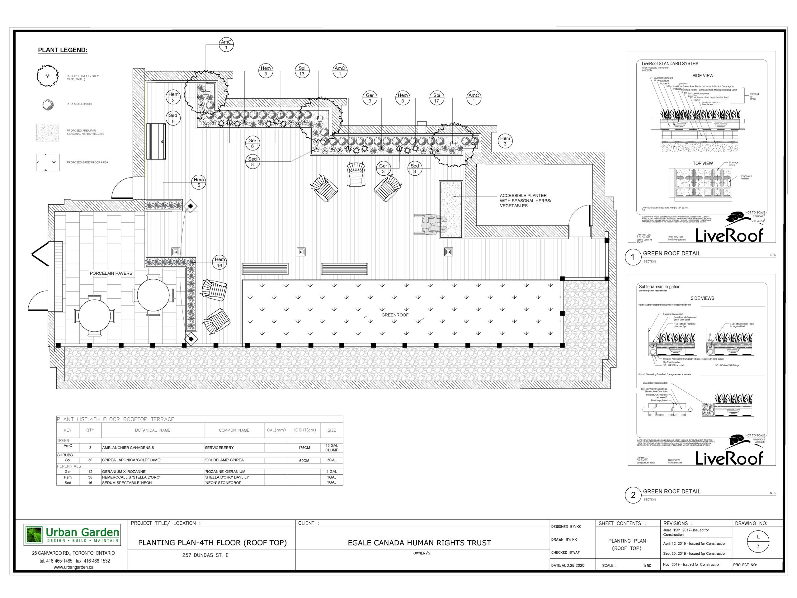
A comprehensive landscape drawing package consisting of a 2D landscape plan, grading plan, planting plan, lighting plan along with landscape details for any built elements.
We understand that every project is different, and that’s why we take the time to listen to your goals, preferences, and budget. Our comprehensive approach ensures that your landscape design not only meets your aesthetic desires but also fits within your practical needs and lifestyle.




















